MENU

ROOM PLAN間取り

Atype 間取りへ
完売御礼
Btype 間取りへ
完売御礼
Ctype 間取りへ
完売御礼
Dtype 間取りへ
完売御礼
Etype 間取りへ
完売御礼

WIC=ウォークインクローゼットFCL=ファミリークローゼットSIC=シューズインクローゼット

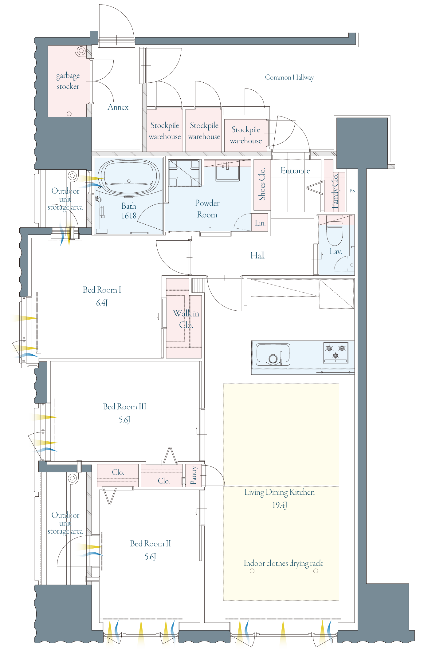
Aタイプ
各階平面
住戸表
  • 廊下などのデッドスペースを極力排し、
    快適な居住空間を実現しました。
  • 主寝室には大容量のウォークインクローゼット、
    玄関にはファミリークローゼットを配し、
    収納力を高めました。
  • 一日の疲れを癒すバスルームには、
    浴室窓を設置し通風採光にも配慮しました。
図面
方位

※掲載の図面は設計段階のもので行政官庁の指導または施工上の都合により、設計・設備・仕様・色調等の変更がある場合がございます。予めご了承ください。

ページトップへ